Appearance
面积计算
占地面积
DB33/T 1152-2025 浙江省建筑工程建筑面积计算和竣工综合测量技术规程 7.4章节
项目总用地面积、建筑物占地面积、构筑物占地面积:《地籍调查规程》(TD/T 1001-2012 )
建筑面积计算
浙江省:
DB33/T 1152-2025 浙江省建筑工程建筑面积计算和竣工综合测量技术规程
2、底层架空及坡地建筑
GB/T 50353-2013 建筑工程建筑面积计算规范
2.0.10 架空层 stilt floor 仅有结构支撑而无外围护结构的开敞空间层。
3.0.7 建筑物架空层及坡地建筑物吊脚架空层,应按其顶板水平投影计算建筑面积。结构层高在2.20m及以上的,应计算全面积;结构层高在2.20m以下的,应计算1/2面积。
(条文解释:本条既适用于建筑物吊脚架空层、深基础架空层建筑面积的计算,也适用于目前部分住宅、学校教学楼等工程在底层架空或在二楼或以上某个甚至多个楼层架空,作为公共活动、停车、绿化等空间的建筑面积的计算 。架空层中有围护结构的建筑空间按相关规定计算。建筑物吊脚架空层见图3。)

TIP
从各项目的执行情况来看:架空层的200方要求连通、三通透。
DB33/T 1152-2018 建筑工程建筑面积计算和竣工综合测量技术规程
5.2.4 架空层的建筑面积计算应符合下列规定:
1 住宅、体育、文化、教育和医疗建筑的底层作公共开放空间的架空层,以及用地与市政道路等开放空间无分隔的公建底层架空层,其净高3.00m及以上、以承重结构落地、视线通透和无特定使用功能,只作为公共休闲、交通、绿化等空间使用,其有效架空部位的水平投影面积达到200m²或占所在建筑主体结构水平面积的1/3及以上的,不计建筑面积。架空层内有围护结构的电梯间、楼梯间、门厅、井道及以栏杆和矮墙等分隔的出入口通道应按其水平投影面积计算;结构层高2.20m及以上的应计全成积,结构层高2.20m以下的应计算1/2面积。
2 不符合上述要求的架空层,应按其柱的外围水平投影面积计算。结构层高2.20m及以上的应计全面积,结构层高2.20以下的应计算1/2面积。
3 坡地建筑吊脚架空间,设计利用部分按其围护结构或柱的外围水平投影面积计算。结构层高2.20m及以上的应计全面积,结构层高2.20m以下的应计算1/2面积。
(条文说明:对坡地建筑的吊脚架空层设有出入口的,有硬化地面的,有围护结构或围护设施的,均视为设计利用,对此面积计算作了规定。)
3、骑楼、过街楼、建筑物通道
GB/T 50353-2013 建筑工程建筑面积计算规范
2.0.25 骑楼 overhang 建筑底层沿街面后退且留出公共人行空间的建筑物。
2.0.26 过街楼 overhead building 跨越道路上空并与两边建筑相连接的建筑物。
2.0.27 建筑物通道 passage 为穿过建筑物而设置的空间。
3.0.27 下列项目不应计算建筑面积:
2 骑楼、过街楼底层的开放公共空间和建筑物通道;

DB33/T 1152-2018 建筑工程建筑面积计算和竣工综合测量技术规程
5.2.15 不计算建筑面积的空间,应符合下列规定:1 骑楼、过街楼的底层用作道路街巷通行的部分,临街建筑用作社会公共通道的檐廊、走廊、架空连廊等,以及穿 过建筑物用作绿化、交通的通道。
(条文解释:……作为公共开放通行的部分,是与市政人行道路相通的,不计建筑面积。)
4、建筑出挑的下部空间
NOTE
- 无柱雨蓬、建筑出挑的下部空间,不计算建筑面积。
📌 GB 55031-2022 民用建筑通用规范
3.1.6 下列空间与部位不应计算建筑面积:4 建筑出挑部分的下部空间;
📗 浙建房发【2024】29号 调整《建筑工程建筑面积计算和竣工综合测量技术规程》部分技术规定
一、根据《民用建筑通用规范》计算建筑面积的有关原则规定,从建筑空间的基本特征出发,结合建筑空间基本安全要求和基本性能目标要求,《技术规程》 中涉及阳台、飘窗、住宅设备平台、无柱雨篷的建筑面积计算作出如下规定:(四)无柱雨篷 无柱雨篷不计算建筑面积。
三、建筑出挑部分的下部空间,不计算建筑面积。
5、门斗、门廊
GB/T 50353-2013 建筑工程建筑面积计算规范
2.0.18 门斗 air lock 建筑物入口处两道门之间的空间。
2.0.19 雨蓬 canopy 建筑出入口上方为遮挡雨水而设置的部件。
2.0.20 门廊 porch 建筑物入口前有顶棚的半围合空间。
3.0.15 门斗应按其围护结构外围水平面积计算建筑面积。结构层高在2.20m及以上的,应计算全面积;结构层高在2.20m以下的,应计算1/2面积。
3.0.16 门廊应按其顶板水平投影面积的1/2计算建筑面积;有柱雨篷应按其结构板水平投影面积的1/2计算建筑面积;无柱雨篷的结构外边线至外墙结构外边线的宽度在2.10m及以上的,应按雨篷结构板的水平投影面积的1/2计算建筑面积。
DB33/T 1152-2018 建筑工程建筑面积计算和竣工综合测量技术规程
5.2.8 门斗、门廊和雨篷的建筑面积计算应符合下列规定:
2 建筑物出入口的两侧有柱或墙体凸出外墙而形成的有顶盖、不封闭的类似门斗的空间,其进深大于0.60m的,按门斗计算面积。
3 有柱的门廊、雨蓬,按其柱的外围与房屋外墙水平投影面积计算,高度2.20m及以上的应计全部面积;高度不足2.20m的应计算1/2面积。
4 独立柱的门廊、雨蓬按其上盖水平投影面积的1/2计算。
5 无柱雨篷宽度(雨篷外缘至外墙结构外缘的最大水平距离)大于2.10m的,应按其水平投影面积的1/2计算。
| 部位 | 国标 | 浙江省标 |
|---|---|---|
| 门斗 | 围护内全面积 | 进深>600的不封闭类似门斗空间按门斗计算 |
| 门廊 | 1/2面积 | 有柱门廊算全面积,独立柱门廊算1/2面积 |
6、架空走廊
TIP
“《建筑工程建筑面积计算规范》宣贯辅导教材” P3
三、修订内容
2 建筑面积计算的规定
(2)取消了有永久性顶盖的面积计规定,增加了无围护结构、有围护设施的面积计算规定,顶盖不是计算建筑面积的唯一条件,如楼梯,有无顶盖不影响楼梯的垂直交通,永久性表述也有欠缺,我国不同建筑有耐久年限的规定;
无围护结构的架空走廊对照表:
(图5计全面积,算法较统一,不用比较)
| 部位 | 特点 | 国标 | 浙江省标 |
|---|---|---|---|
| 无围护结构的架空走廊 | (图4左,无顶盖) | 1/2面积 | 0 |
| (图4右,有顶盖,有柱) | 全面积 | ||
| (图4右改,有顶盖,无柱) | 1/2面积 |

TIP
国标强调的是有没有围护设施。
浙江省标仍是看有没有顶盖。
GB/T 50353-2013 建筑工程建筑面积计算规范
2.0.12 架空走廊 elevated corridor 专门设置在建筑物的二层或二层以上,作为不同建筑物之间水平交通的空间。
2.0.16 檐廊 eaves gallery 建筑物挑檐下的水平交通空间。
2.0.17 挑廊 overhanging corridor 挑出建筑物外墙的水平交通空间。
3.0.9 建筑物间的架空走廊,有顶盖和围护结构的,应按其围护结构外围水平面积计算全面积;无围护结构、有围护设施的,应按其结构底板水平投影面积计算1/2面积。
(条文解释:无围护结构的架空走廊见图4,有围护结构的架空走廊见图5。)
DB33/T 1152-2018建筑工程建筑面积计算和竣工综合测量技术规程
5.2.7 走廊、檐廊、连廊、挑廊和架空通廊的建筑面积计算应符合下列规定:
1 两侧均封闭的走廊、檐廊、连廊、挑廊和架空通廊,不论其两端是否封闭,均应按其围护结构外围水平投影面积计算全部建筑面积。
2 与房屋相连的有上盖和柱的走廊、连廊和挑廊,均按其柱的外围水平投影计算全部建筑面积。
3 有顶盖无柱、不封闭的走廊、连廊、挑廊和架空通廊,按其围护设施水平投影面积的1/2计算。
4 宽度在0.90m以上有上盖无柱的不封闭檐廊,有围护设施的按其围护设施(两端均有与房屋相连的墙体的,视为有围护设施)外围水平投影面积的1/2计算。无围护设施的,按其顶盖水平投影面 积的1/2计算。
5 不封闭的走廊、连廊、挑廊和架空通廊,当顶盖不能完全覆盖围护设施时,顶盖宽度大于0.60m的,按其顶盖水平投影面积计算。敞开面有柱的计全面积,敞开面无柱的应计算1/2面积。
(条文解释:本条对不同建筑表式的走廊、檐廊、连廊、挑廊和架空通廊的建筑面积计算做了规定。当不封闭的走廊、连廊、挑廊和架空通廊的顶盖不能完全覆盖围护设施时,按顶盖投影面积计算,但廊敞开面的外侧有柱的计全面积,无柱的应计算1/2面积(图5-5)。)

TIP
国标强调的是有没有围护设施。
浙江省标仍是看有没有顶盖。
6、挑廊、檐廊

GB/T 50353-2013 《建筑工程建筑面积计算规范》
2.0.16 檐廊 eaves gallery 建筑物挑檐下的水平交通空间。
2.0.17 挑廊 overhanging corridor 挑出建筑物外墙的水平交通空间。
3.0.14 有围护设施的室外走廊(挑廊)应按其结构底板水平投影面积计算1/2面积;有围护设施(或柱)的檐廊,应按其围护设施(或柱)外围水平面积计算1/2面积。(条文解释:檐廊见图6。)
檐廊、连廊对照表:
| 类别 | 特点 | 国标 | 浙江省标 |
|---|---|---|---|
| 无围护设施 | 首层檐廊(图6左) | 0 | 上盖宽度>900计1/2;<900不计面积 |
| 有围护设施 | 无柱(图6右) | 按围护设施计1/2面积(注:同国标图4) | 上盖宽度>600时,按上盖面积计1/2 |
| 有柱(图6右改) | 上盖宽度>600时,按上盖面积计全面积 |
7、保温层
NOTE
- 按国标,建筑面积要算至完成面。
- 浙江省保温层可以不计面积。
📌GB55031-2022 民用建筑通用规范
3.1.1 建筑面积应按建筑每个自然层楼(地)面处外围护结构外表面所围空间的水平投影面积计算。
(条文解释:)3.1.1本条对面积计算的界面作出 了规定。条文中的“每个自然层”为非单层建筑时,建筑面积应为建筑各自然层面积的总和;“楼(地)面处”是指楼(地)面的设计完成面,对于没有结构楼板的地面,应为混凝土垫层顶面;“外围护结构”是指外墙,包括作为外围护结构的玻璃幕墙、金属幕墙、石材幕墙、人造板材幕墙等;“外表面”是指外围护结构的设计完成面,建筑外围护结构一般由墙体、保温层、饰面层组成,设计完成面即装饰面层外边线;当幕墙作为外围护结构时,“外表面”为幕墙面板外边线(见图1)。

📕 GB/T 50353-2013 建筑工程建筑面积计算规范
3.0.24 建筑物的外墙外保温层,应按其保温材料的水平截面积计算,并计入自然层建筑面积。
📗 DB33/T 1152-2018 建筑工程建筑面积计算和竣工综合测量技术规程
5.2.15 不计算建筑面积的空间,应符合下列规定:
5 外墙的勒脚、附墙柱、垛、台阶、保温层、墙面抹灰、装饰面、镶贴块料面层和装饰性幕墙,挑出宽度在2.10m以下的无柱雨蓬。(条文解释:为鼓励绿色节能建筑的保障实施,便于建筑设计与产权登记计算的便利性,统一计算口径,明确将外墙外的附墙柱(包括凸出建筑外墙外的结构柱和非结构性装饰柱)、保温层、墙面抹灰和装饰面等均不计建筑面积。)
8、阳台
NOTE
- 封闭阳台算全面积,不封闭阳台算1/2。(浙江省已和国标统一)
- (浙江省)不封闭阳台建筑面积占套内建筑面积(不含阳台、飘窗)比值超过9%时,全算。(阳台投影面积可做到18%)
- (杭州市)规划要求做封闭阳台的居住建筑,阳台按水平投影面积的 1/2 计算容积率。
📌 GB 55031-2022 民用建筑通用规范
3.1.5 阳台建筑面积应按围护设施外表面所围空间水平投影面积的1/2计算;当阳台封闭时,应按其外围护结构外表面所围空间的水平投影面积计算。
条文说明:
3.1.5 本条依据阳台的基本定义,规定了阳台面积的计算原则。
📗 浙自然资函【2025】3号 关于调整《浙江省工程建设项目“多测合一”测量技术规程(试行)》部分指标的通知
二、第5.1.3.8条,单套住宅不封闭阳台建筑面积占套内建筑面积(不含阳台、飘窗等)的比值由7%调整为9%。
📒 杭规划资源发【2024】49号 杭州市规划和自然资源局印发关于优化建设项目容积率及相关指标计算规则的通知
二、计算规则
4、邻近高速、高架、铁路、航空航道沿线,以及规划有特殊要求的居住建筑,在规划条件中明确需采用封闭式阳台的,阳台按水平投影面积的 1/2 计算容积率。
📗 浙建房发【2024】29号 关于调整《建筑工程建筑面积计算和竣工综合测量技术规程》部分技术规定的通知
一、根据《民用建筑通用规范》计算建筑面积的有关原则规定,从建筑空间的基本特征出发,结合建筑空间基本安全要求和基本性能目标要求,《技术规程》 中涉及阳台、飘窗、住宅设备平台、无柱雨篷的建筑面积计算作出如下规定:
(一)阳台
1. 封闭式阳台,按其外围护结构所围空间的水平投影面积计算建筑面积。
2. 不封闭阳台,顶盖投影连续的,按阳台的外围护结构所围空间水平投影面积的1/2计算;顶盖与其围护设施上下不一致的,按其重叠部分水平投影面积的1/2 计算。
3. 设有支撑柱不封闭的阳台,按其围护水平投影面积的1/2计算。
4. 上有阳台、具有围护结构或围护设施的底层平台,视作阳台。
5. 单套住宅不封闭阳台建筑面积占套内建筑面积(不含阳台、飘窗)比值超过7%时,超过部分按“封闭式阳台”核算容积率面积。
(四)无柱雨篷 无柱雨篷不计算建筑面积。
9、飘窗
NOTE
- 飘窗(浙江省):结构层高<2.20m、窗台板底与室内楼板面净高差>0.40m、进深<0.70m,窗台下无楼板延伸、对外开敞的飘窗,不计算面积。(以前是净高2.1米,这个变化需注意。)
📗 浙建房发【2024】29号 关于调整《建筑工程建筑面积计算和竣工综合测量技术规程》部分技术规定的通知
一、根据《民用建筑通用规范》计算建筑面积的有关原则规定,从建筑空间的基本特征出发,结合建筑空间基本安全要求和基本性能目标要求,《技术规程》 中涉及阳台、飘窗、住宅设备平台、无柱雨篷的建筑面积计算作出如下规定:
(二)飘窗
1. 结构层高在2.20m及以上的飘窗,按其外围水平投影计算建筑面积。
2. 窗台下有楼板延伸,或不对外开敞,或窗台板底与室内楼板面净高差在0.40m及以下,或进深在0.70m及以上的飘窗,计算全部容积率面积。
10、住宅设备平台
NOTE
- (浙江省)设备平台需要附属在建筑外围结构外,才能不计算建筑面积。
- (浙江省)套内建筑面积70.00m²以下,室外设备平台可3m²不计面积;70.00m²~140.00m²的,可5m²;140.00m²及以上的可7m²。
📗 浙自然资函【2025】3号 关于调整《浙江省工程建设项目“多测合一”测量技术规程(试行)》部分指标的通知
三、第5.1.3.10条,住宅套内建筑面积(不含阳台、飘窗等)70.00m²及以上情形的调整为70.00m²~140.00m²、140.00m²及以上两种情形,限额分别为5m²、7m²。
📗 浙自然资函【2024】15号 关于印发《浙江省工程建设项目“多测合一”测量技术规程(试行)》的通知
5.1.3.9 结构层高或结构板顶高度在两个自然层高及以上的不封闭阳台,应按其围护设施外表面所围空间水平投影面积的1/2 计算容积率面积。
📗 浙建房发【2024】29号 关于调整《建筑工程建筑面积计算和竣工综合测量技术规程》部分技术规定的通知
一、根据《民用建筑通用规范》计算建筑面积的有关原则规定,从建筑空间的基本特征出发,结合建筑空间基本安全要求和基本性能目标要求,《技术规程》 中涉及阳台、飘窗、住宅设备平台、无柱雨篷的建筑面积计算作出如下规定:
(三)住宅设备平台 1. 附属在建筑外围护结构外的室外设备平台不计算建筑面积。
2. 建筑外围护结构内的设备平台,参照阳台面积计算规定计算建筑面积,并纳入阳台容积率指标。
3. 套内建筑面积70.00m²以下的,其附属在建筑外围护结构外的室外设备平台累计投影面积大于3.00m²的,或套内建筑面积70.00m²及以上的,其附属在建筑外围护结构外的室外设备平台累计投影面积大于5.00m²的,超过部分按水平投影面积全部计算容积率面积。
11、消防水池(不算面积)
📗 DB33/T 1152-2018 浙江省建筑工程建筑面积计算和竣工综合测量技术规程
5.2.15 不计算建筑面积的空间,应符合下列规定:
10 地下室内储水池(消防水池)和屋项上的水箱或储水池(消防水池)。
📗 浙自然资函【2024】15号 关于印发《浙江省工程建设项目“多测合一”测量技术规程(试行)》的通知
5.1.2.7 不计算建筑面积的空间与部位
k) 地下室储水池(消防水池等,不含人防工程电站专用水池)和屋顶上的水箱或储水池(消防水池等)。
GB55031-2022 民用建筑通用规范
GB55031-2022 民用建筑通用规范
3.1 建筑面积
(条文解释:)建筑面积计算是维护社会公平正义、保障公众权益和公众利益的重要内容,故本节对建筑面积的计算进行了原则性规定。
3.1.1 建筑面积应按建筑每个自然层楼(地)面处外围护结构外表面所围空间的水平投影面积计算。
(条文解释:)3.1.1本条对面积计算的界面作出 了规定。条文中的“每个自然层”为非单层建筑时,建筑面积应为建筑各自然层面积的总和;“楼(地)面处”是指楼(地)面的设计完成面,对于没有结构楼板的地面,应为混凝土垫层顶面;“外围护结构”是指外墙,包括作为外围护结构的玻璃幕墙、金属幕墙、石材幕墙、人造板材幕墙等;“外表面”是指外围护结构的设计完成面,建筑外围护结构一般由墙体、保温层、饰面层组成,设计完成面即装饰面层外边线;当幕墙作为外围护结构时,“外表面”为幕墙面板外边线(见图1)。

3.1.2 总建筑面积应按地 上和地下建筑面积之和计算,地上和地下建筑面积应分别计算。
3.1.3 室外设计地坪以上的建筑空间,其建筑面积应计入地上建筑面积;室外设计地坪以下的建筑空间,其建筑面积应计人地下建筑面积。
(条文解释:)3.1.3 本条对地上、地下建筑面积的划分作出了规定。
室外设计地坪以上的建筑空间,其建筑面积应计人地上建筑面积,室外设计地坪以下的建筑空间,其建筑面积应计人地下建筑面积。
当室外设计地坪位于建筑空间的中间时,若该建筑空间的楼(地)面低于室外设计地坪的高度大于该空间建筑层高的1/2,应计入地下建筑面积;若其楼(地)面低于室外设计地坪的高度小于或等于该空间建筑层高的1/2,则计人地上建筑面积。
对于室外设计地坪为坡地的情况,建筑空间的楼(地) 面低于室外设计地坪的高度应以平均高度计算。
3.1.4 永久性结构的建筑空间, 有永久性顶盖、结构层高或斜面结构板顶高在2. 20m及以上的,应按下列规定计算建筑面积:
1 有围护结构、封闭围合的建筑空间,应按其外围护结构外表面所围空间的水平投影面积计算;
2 无围护结构、以柱围合,或部分围护结构与柱共同围合,不封闭的建筑空间,应按其柱或外围护结构外表面所围空间的水平投影面积计算;
3 无围护结构、单排柱或独立柱、不封闭的建筑空间,应按其顶盖水平投影面积的1/2计算;
4 无围护结构、有围护设施、无柱、附属在建筑外围护结构、不封闭的建筑空间,应按其围护设施外表面所围空间水平投影面积的1/2计算。
条文说明:
3.1.4 为了满足公众权益和公众利益,本条按照建筑空间的基本特征对建筑面积的计算作出了原则规定。计算面积的前提条件有以下三点: 一是永久性结构的建筑空间,此永久性结构是相对临时性结构而言,即不包括临时房屋、活动房屋、简易房屋;二是要有永久性顶盖,不包括临时搭建的各类顶盖,如临时性遮阳篷等;三是结构层高或斜面结构板顶高度在2.20m及以上(见图2)的建筑空间。

1 本款包括:建筑外围护结构以内的各类使用空间及局部楼层;地下室、半地下室及其相应出入口;与室内相通的变形缝;建筑内的设备层、管道层、避难层;立体书库、立体仓库、立体车库;水箱间、电梯机房;门厅、大厅及门厅、大厅内的回廊;封闭的通廊、挑廊、连廊,封闭架空通道;有项盖的采光井;室内有围护设施的悬挑看台、舞台灯控室、室内场馆看台下部空间;附属在建筑物外墙的落地橱窗等。但不包括有永久性顶盖,有围护结构、均布荷载不大于0. 5kN/m²,且点荷载不大于1kN的室内非上人顶盖,如展览、机场等建筑中的房中房顶部。
建筑内的楼梯(间)、电梯井、提物井、管道井、通风排气竖井、烟道应按建筑自然层计算建筑面积。
2 本款包括:由墙、柱围合的雨篷、车棚、货棚、站台、有顶盖平台、有顶盖空中花园;门廊、门斗;室外楼梯;地下车库出入口;室外场馆看台下部空间;有柱的室外连廊;建筑物架空层及吊脚架空层;结构转换层等。
3 本款包括:由单排柱或独立柱支撑的室外连廊、车棚、货棚、站台、室外场馆看台雨篷、单排柱或独立柱支撑的室外楼梯等。
4 本款包括:无柱的室外挑廊、连廊、檐廊;出挑的无柱室外楼梯;出挑的有顶盖空中花园等,不包含无柱雨篷。
3.1.5 阳台建筑面积应按围护设施外表面所围空间水平投影面积的1/2计算;当阳台封闭时,应按其外围护结构外表面所围空间的水平投影面积计算。
(条文解释:)3.1.5 本条依据阳台的基本定义,规定了阳台面积的计算原则。
3.1.6下列空间与部位不应计算建筑面积:
1 结构层高或斜面结构板顶高度小于2.20m的建筑空间;
2 无顶盖的建筑空间;
3 附属在建筑外围护结构上的构(配)件;
4 建筑出挑部分的下部空间;
5 建筑物中用作城市街巷通行的公共交通空间;
6 独立于建筑物之外的各类构筑物。
条文解释:
3.1.6 不计算建 筑面积的空间与部位:
1 结构层高或斜面结构板顶高度小于2.20m的建筑空间:层高小于2.20m的设备管道夹层、结构板顶高度小于2.20m的坡屋顶等。
2 无顶盖的建筑空间:室外平台、室外挑台、露台、室外游泳池、室外台阶、坡道、建筑屋面、屋顶花园、花架;无顶盖架空通廊;各种操作平台、上料平台、设备平台。
3 附属在建筑外围护结构的构(配)件,指附属在外围护结构的装饰、遮阳、设备平台等构(配)件,如:附属在外墙的装饰柱、门窗线脚、勒脚、突出墙面的装饰线条、空调机板、遮阳板、建筑挑檐、无柱雨篷等非建筑外围护结构系统的构(配)件(见图3)。

4 建筑出挑部分的 下部空间(见图4)。

5 建筑物中用作城市街巷通行的公共交通空间:骑楼、建筑的过街通道等。
6 独立于建筑物之 外的各类构筑物:烟筒、水塔、水(油)罐、栈桥、储仓、储油(水)池等。
3.1.7 功能空间使用面积应按功能空间墙体内表面所围合空间的水平投影面积计算。
3.1.8 功能单元使用面积应按功能单元内各功能空间使用面积之和计算。
3.1.9 功能单元建筑面积应按功能单元使用面积、功能单元墙体水平投影面积、功能单元内阳台面积之和计算。
条文解释:
4.3.1.7~3.1.9 规定了功能空间使用面积、功能单元使用面积、功能单元建筑面积的计算方法,强调计算功能单元本身的使用面积和建筑面积,不包含功能单元之外的公共门厅、公共走道、公共楼梯等的面积。
功能空间使用面积:即房间净面积,这里“墙体内表面”是指围合功能空间的墙体基层表面,不包含墙体饰面层(图5)。功能空间是组成功能单元的最小元素,如:对于住宅建筑,功能空间使用面积即为住宅内某独立空间,卧室、客厅、厨房或卫生间的使用面积。
功能单元使用面积:为各功能空间使用面积之和。如:对于住宅建筑,功能单元使用面积即为住宅套内使用面积,其面积为套内卧室、起居室、过厅、过道、厨房、卫生间、厕所、储藏室、壁柜等功能空间使用面积的总和。
功能单元建筑面积:为功能单元使用面积、功能单元墙体面积、功能单元阳台面积及为本功能单元服务的烟囱、通风道、管道井面积之和。其中,功能单元墙体面积为功能单元各功能空间周围的围护或承重墙体,或其他承重支撑体的水平投影面积。其中,功能单元之间的分隔墙和功能单元与公共建筑空间的分隔墙等公共墙,按其水平投影面积的一半计入功能单元墙体面积;外墙(包括山墙)按其水平投影面积计人功能单元墙体面积。功能单元阳台面积按围护设施外表面所围空间水平投影面积的1/2计算面积,当阳台封闭时,应按其外围护结构外表面所围空间的水平投影面积计算全面积。
绿地面积计算
1、绿地面积算法
GB50180-2018 城市居住区规划设计标准
A.0.2 居住街坊内绿地面积的计算方法应符合下列规定:
1 满足当地植树绿化覆土要求的屋顶绿地可计入绿地。绿地面积计算方法应符合所在城市绿地管理的有关规定。
2 当绿地与城市道路临接时,应算至道路红线;当与居住街坊附属道路临接时,应算至路面边缘;当与建筑物临接时,应算至距房屋墙脚1.0m处;当与围墙、院墙临接时,应算至墙脚。
3 当集中绿地与城市道路临接时,应算至道路红线;当与居住街坊附属道路临接时,应算至距路面边缘1.0m处;当与建筑临接时,应算至距房屋墙脚1.5m处。
INFO

- 算法和原来不同。(绿地和集中绿地的算法也不同。)
DB/T 33 1152-2018 浙江省建筑工程建筑面积计算和竣工综合测量技术规程
8.2.1.2绿地面积计算的起止界规定:
- 绿地边界对宅间道路、组团路和小区路算到路边,当小区路设有人行便道时算到便道边,沿居住区路、城市道路则算到红线;距房屋墙脚1.5m;对其它围墙、院墙算到墙脚;
2)住宅地块中的集中绿地 需要满足如下条件:应同时满足每边宽度不小于8m、面积不小于400m²和不少于1/3的绿地面积在标准的建筑日照阴影线范围之外的日照环境要求。
(应在规范中查看8.2一节的全部内容。)
2、特殊规定
跑道中间
景观水体
植草砖停车位
《北京地区建设工程规划设计通则》2012.10
第二部分 第二章 第七节 附属绿地
二(二)除旧城平房区外,以下情况原则上不计入建设工程附属绿化用地面积:
5.运动场的跑道及其所围合的用于运动等目的的非绿化内容的用地;
TIP
国标计算退建筑1米,退浙江省退1.5米。集中绿地国标退建筑1.5米、退附属道1米,浙标不要求退。
绿地设计参《CJJ/T 294-2019 居住绿地设计标准》和《GB50420-2007 城市绿地设计规范》两本规范。
容积率控制
2019年4月3日发布“建科函[2019]57号 关于别墅项目建设审批有关事项的通知”
![建科函[2019]57号](/assets/%E5%BB%BA%E7%A7%91%E5%87%BD_2019_57%E5%8F%B7.DSTqZSc2.png)
(注:“住建部公告 2023年第58号 住房和城乡建设部关于废止和宣布失效部分行政规范性文件的公告” 第69条,宣布“建科函[2019]57号”失效)
高度计算
GB 55031-2022 民用建筑通用规范
3.2 建筑高度
3.2.1 平屋顶建筑高度应按室外设计地坪至建筑物女儿墙顶点的高度计算,无女儿墙的建筑应按至其屋面檐口顶点的高度计算。
3.2.2 坡屋顶建筑应分别计算檐口及屋脊高度,檐口高度应按室外设计地坪至屋面檐口或坡屋面最低点的高度计算,屋脊高度应按室外设计地坪至屋脊的高度计算。
3.2.3 当同一座建筑有多种屋面形式,或多个室外设计地坪时,建筑高度应分别计算后取其中最大值。
条文说明:
3.2.1~3.2.3 对除第3.2.4条、第3. 2. 5条情形外的建筑物高度起算点进行了规定,基本的原则是真实地反映建筑物的实际高度,本规范中规定的建筑高度有别于防火规范里的建筑高度。其中,第3.2.2条规定坡屋顶建筑应分别计算檐口(见图6、图7)和屋脊高度,此处的檐口高度是指室外设计地坪至屋面檐口(坡屋面最低点)的高度,也即檐口结构板最外缘的顶标高(见图6);当有檐沟时,檐口高度为檐沟(或构件)最外缘的顶标高(见图7)。第3.2.3条规定当同一座建筑物有多种屋面形式,或台地建筑有多个室外设计地坪(地面面层)的情形(不包含地下室的下沉庭院),建筑高度应分别计算后取其中最大值(见图8),若H2≥H3,且H2≥H,则建筑高度为H2;对于坡地建筑,室外地坪起算点,应为建筑围护结构外表面与室外设计地坪.(地面面层)交界的最低处(见图9)。

3.2.4 机场、 广播电视、电信、微波通信、气象台、卫星地面站、军事要塞等设施的技术作业控制区内及机场航线控制范围内的建筑,建筑高度应按建筑物室外设计地坪至建(构)筑物最高点计算。
3.2.5 历史建筑,历史文化名城名镇名村、历史文化街区、文物保护单位、风景名胜区、自然保护区的保护规划区内的建筑,建筑高度应按建筑物室外设计地坪至建(构)筑物最高点计算。
条文说明:
3.2.4、3.2. 5 对所列两种控制区的建筑,考虑航空、通信安全,以及减少对历史建筑保护区的风貌影响,建筑高度计算按建(构)筑物的最高点计算,包括建筑屋顶的局部突出物,也要求计入建筑高度。
3.2.6 本规范第3.2.4条、第3.2.5条规定以外的建筑,屋顶设备用房及其他局部突出屋面用房的总面积不超过屋面面积的1/4时,不应计人建筑高度。
条文说明:
3.2.6 本条是针对除第 3.2.4条、3.2.5条两种情况外,屋顶设备用房及其他局部突出屋面用房的总面积不超过屋面面积的1/4时,不应计人建筑高度,屋顶设备用房及其他局部突出屋面用房是指屋顶楼梯间、电梯机房、水箱间、装饰塔等。
3.2.7 建筑的室内净高应满足各类型功能场所空间净高的最低要求,地下室、局部夹层、公共走道、建筑避难区、架空层等有人员正常活动的场所最低处室内净高不应小于2.00m。
条文说明:
3.2.7 室内净高是满足建筑功能的基本要素,也是保证安全、人身健康、公众权益和公共利益的控制性底线要求。本条提出了民用建筑的室内净高应满足各类型功能场所空间净高的最低要求,并对民用建筑的通用空间,如地下室、局部夹层、公共走道、建筑避难区、架空层给出了最低室内净高要求。此处的室内净高为室内楼(地)面面层(设计完成面)至上部吊顶或楼板、屋面板底面之间有效使用空间的垂直距离。
1、消防防建筑高度 —— 平地(非住宅&住宅)
TIP
室外设计地面至屋面面层。
建筑的消防高度计算基本各地都按国标,只是对于“坡屋面”,有些地标有进一步解释。


GB 50016-2014(2018版)《建筑设计防火规范》
A.0.1 建筑高度的计算应符合下列规定:
1 建筑屋面为坡屋面时,建筑高度应为建筑室外设计地面至其檐口与屋脊的平均高度;【图示1】
2 建筑屋面为平屋面(包括有女儿墙的平屋面)时,建筑高度应为建筑室外设计地面至其屋面面层的高度;【图示2】
3 同一座建筑有多种形式的屋面时,建筑高度应按上述方法分别计算后,取其中最大值;【图示3】
6 对于住宅建筑,设置在底部且室内高度不大于2.2m的自行车库、储藏室、敞开空间,室内外高差或建筑的地下或半地下室的顶板面高出室外设计地面的高度不大于1.5m的部分,可不计入建筑高度。【A.0.2图示1】【A.0.2图示2】【A.0.2图示3】
WARNING
室内首层地面至屋面面层。
(仅浙江省可算至屋面结构面)
2、消防防建筑高度 —— 台阶式地坪
GB 50016-2014(2018版)
A.0.1 建筑高度的计算应符合下列规定:
4 对于台阶式地坪,当位于不同高程地坪上的同一建筑之间有防火墙分隔,各自有符合规范规定的安全出口,且可沿建筑的两个长边设置贯通式或尽头式消防车道时,可分别计算各自的建筑高度。否则,应按其中建筑高度最大者确定该建筑的建筑高度;【图示4】

TIP
其它地方补充规定:
- 浙江省浙消[2020]166号(应从低点起算高度,较低处房间进深小于30米,满足自然采光通风)
- 广州市2019.11.12 消防设计、审查难点问题解答 2.2.2
- 重庆市坡地高层民用建筑设计防火规范DB 50-5031-2004
- 贵州省坡地民用建筑设计防火规范DBJ52-062-2013 于较高地坪的建筑应按地下室设计。 低于较高地坪的建筑按地上建筑消防设计时,需依据地方规范细则。
浙江省细则:
浙消[2020]166号 浙江省消防技术规范难点问题操作技术指南
1.2 台阶式地坪
对于台阶式地坪,当位于不同高程地坪上的同一建筑无法满足分别计算各自建筑高度的条件时,应按下列原则计算建筑高度:
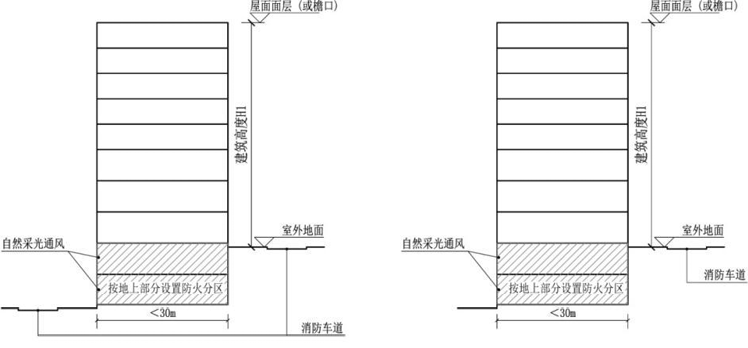
1.2.1 按规范需要设置环形消防车道的建筑,当其较低室外地坪和较高地坪形成环形消防车道或沿建筑的两个长边设置贯通式或尽头式消防车道时,可按较高或较低室外地坪(与应设置的消防登高操作场地的标高应一致)起算建筑高度;按规范可沿建筑的一个长边设置消防车道的高层建筑,其最大进深不宜大于50m,可按消防车道的相应室外地坪(与应设置的消防登高操作场地的标高应一致)起算建筑高度;其余按照《建筑设计防火规范》未要求设置消防车道的建筑,可按照实际室外地坪情况确定起算建筑高度。(附图1.2.1)

1.2.2 低于较高地坪的房间应根据实际情况确定消防设计:
1 当按较高的室外地坪起算建筑高度时,低于较高地坪的房间应按地下室进行消防设计,当建筑内部空间距外墙临空处进深不大于30m 且具备自然采光通风条件时,该空间可按地上部分设置防火分区;如有部分空间进深大于30m 时,与进深不大于30m 的空间应采用防火墙分隔,该防火墙上需开设连通口时,应采用下沉式广场等室外开敞空间、避难走道、防火隔间或防烟前室连接,不得采用防火卷帘;(附图1.2.2-1)

2 当按较高的室外地坪起算建筑高度时,低于较高地坪的房间地面与较高地坪的高差小于其层高的1/3 时(从较高地坪起算为地上房间),可按地上部分进行消防设计;(附图1.2.2-2)

3 当按较低的室外地坪起算建筑高度时,低于较高地坪的房间,可按地上部分进行消防设计。但当建筑内部空间距外墙临空处进深大于30m 或不具备自然采光通风条件时,该空间应按照地下室进行消防设计,且与按地上部分进行消防设计的部分之间应采取防火墙、防火门、防火卷帘分隔划为不同的防火分区。(附图1.2.2-3)


广州市2019.11.12 消防设计、审查难点问题解答
三.4 坡地建筑中的地下室其中一面能直通室外(其余三面位于覆土以内),且有消防车通道可达,此地下室是否可定义为首层?
答:按《建规》2.1.6进行计算,当该层地面低于室外设计 地面的平均高度大于该房间平均净高的1/3时,不能按首层(地下建筑)判定。 针对室外场地有高差情况下,按本指南第四章节2.2.2执行。
高度控制
NOTE
- 一般建筑设计按规划条件做就可以了。
📕 建科[2021]76号 住房和城乡建设部 应急管理部关于加强超高层建筑规划建设管理的通知
一、严格管控新建超高层建筑
(一)从严控制建筑高度。各地要严格控制新建超高层建筑。一般不得新建超高层住宅。城区常住人口300万人口以下城市严格限制新建150米以上超高层建筑,不得新建250米以上超高层建筑。城区常住人口300万以上城市严格限制新建250米以上超高层建筑,不得新建500米以上超高层建筑。各地相关部门审批80米以上住宅建筑、100米以上公共建筑建设项目时,应征求同级消防救援机构意见,以确保与当地消防救援能力相匹配。城区常住人口300万以下城市确需新建150米以上超高层建筑的,应报省级住房和城乡建设主管部门审查,并报住房和城乡建设部备案。城区常住人口300万以上城市确需新建250米以上超高层建筑的,省级住房和城乡建设主管部门应结合抗震、消防等专题严格论证审查,并报住房和城乡建设部备案复核。
(三)深化细化评估论证。……超高层建筑防灾避难场地应集中就近布置,人均面积不低于1.5平方米。加强超高层建筑节能管理,标准层平面利用率一般不低于80%,绿色建筑水平不得低于三星级标准。
(五)压紧夯实决策责任。实行超高层建筑决策责任终身制。城区常住人口300万以下城市新建150米以上超高层建筑,城区常住人口300万以上城市新建250米以上超高层建筑,应按照《重大行政决策程序暂行条例》(国务院令第713号),作为重大公共建设项目报城市党委政府审定,实行责任终身追究。
📕 国务院 第713号 重大行政决策程序暂行条例
第三十八条 决策机关违反本条例规定的,由上一级行政机关责令改正,对决策机关行政首长、负有责任的其他领导人员和直接责任人员依法追究责任。
决策机关违反本条例规定造成决策严重失误,或者依法应当及时作出决策而久拖不决,造成重大损失、恶劣影响的,应当倒查责任,实行终身责任追究,对决策机关行政首长、负有责任的其他领导人员和直接责任人员依法追究责任。
决策机关集体讨论决策草案时,有关人员对严重失误的决策表示不同意见的,按照规定减免责任。
第四十一条 承担论证评估工作的专家、专业机构、社会组织等违反职业道德和本条例规定的,予以通报批评、责令限期整改;造成严重后果的,取消评估资格、承担相应责任。
📕 建村[2021] 45号 住房和城乡建设部等15部门 关于加强县城绿色低碳建设的意见
二、严格落实县城绿色低碳建设的有关要求
(三)限制县城民用建筑高度。县城民用建筑高度要与消防救援能力相匹配。县城新建住宅以6层为主,6层及以下住宅建筑面积占比应不低于70%。鼓励新建多层住宅安装电梯。县城新建住宅最高不超过18层。确需建设18层以上居住建筑的,应严格充分论证,并确保消防应急、市政配套设施等建设到位。加强50米以上公共建筑消防安全管理。建筑物的耐火等级、防火间距、平面设计等要符合消防技术标准强制性要求。
📗 赣建办文【2024】70号 关于印发《江西省商品住宅品质提升设计指引(试行)》的通知
2.1.7 住宅建筑高度不应大于54m,以小高层和多层住宅为主。(链接)
本文最后更新:2024-07-15