Appearance
非住宅用地上的低层
问题及目标
一、问题讨论范围
TIP
由于用地性质的不同,同样的1-3层的低层(平地,1部楼梯,一、二级耐火等级,无地下室),在不同的地块中可能会定义成不同的建筑类别,应符合不同的建筑规范、按不同的建筑性质配置停车位、设计层高等。
- 住宅(R11)、酒店(B14)、办公(B29)、商业(B11)、工业(M1)(GB50137-2011)
- 住宅(0701)、酒店(0504)、办公(0505)、商业(0501)、工业(0601)(GB/T 21010-2017)
二、住宅用地时
满足疏散距离时,可1个外门。净宽900。
无障碍住宅设无障碍出入口。
户内楼梯,无采光通风要求。(GB50096-2011, 5.7.4 及说明)220(w)*200(h),净宽750或900
户内任一点到室外出口的距离不应超过22m。(GB50016-2014, 5.5.29)浙江省30m。(浙公通字[2017]89号187条)
当最远点超22米(浙江省超30米)时,应增加楼梯控制疏散距离(爬梯不计)。或参考以下做法:
窗槛墙做到1200(不能不限),疏散到楼梯小于22米(不能30米),并满足住宅开敞楼梯间要求(满足开窗面积、外窗周边1米内无其它门窗洞口、净宽1000、260*175、休息平台、装修全A级)。
户内厨房,墙及门窗无防火要求。采光应满足GB50033-2013,通风应满足GB50096-2011,7.2.4.2。
居住区内沿道路的单排停车可依据浙公通字[2017]89号32条。国标应保持6米间距或按GB50067-2014, 4.2.3减距离。
图中不应画庭院围墙或标识为“私人庭院”。(《中华人民共和国物权法》第七十三条。)
其它:
应满足日照及规划住宅间距要求。
浙江、江苏窗槛墙可不限。(无地标规定的地方1200)
按居住建筑计算节能。
不需要消防救援口。
总图间距可依据5.2.4
图片来自于网络,总建筑面积共约207m²。


定性为旅馆
2018.04 (最后更新于2020.02)
一、定性为公寓式旅馆(一个套间)
只一个出口时,需满足下列条件之一:
1 最远点离出口≯22m,总面积≯120m²。疏散门净宽≮0.9。
2 最远点离出口≯15m,面积≯200m²。疏散门净宽≮1400。
以上不满足时应设2个出口,并满足最远点离出口≯22m。
无障碍客房设无障碍出入口
当满足房间的条件时(见上一条),有可能可以套用住宅户内楼梯的要求(规范中无明确规定)。适用1-2层小面积,用户内楼梯有一定风险。
室内任一点到室外出口的距离不应超过22m。(GB50016-2014, 5.5.17.3)公共建筑一般要从阳台和露台起算。
床位不宜多于4床。(JGJ 62-2014, 4.2.1.3)(控制规模)
公共部位栏杆高≮1200。(JGJ62-2014, 4.1.13)
公共建筑内的厨房,墙体2小时耐火,乙级防火门,窗上有其它房间时,应设防火挑檐(JGJ64-2017, 4.3.11)也可以不写厨房。(JGJ62-2014, 4.2.3有公寓式旅馆的说法,参住宅做法时需消防认可。)
总图上室外停车时,注意停车场离建筑不小于6米或按GB50067-2014, 4.2.3减距离。
卫生间不能设在餐厅上方。(JGJ62-2014, 4.1.9)下层也可以不写餐厅。
其它:
窗槛墙应满足800或1200。
无日照要求,按公共建筑计算节能。人员密集场所,外墙保温应为A级。应设消防救援口。
二、定性为旅馆(一幢建筑)
外门净宽≮900。(GB50016-2014, 5.5.18)
设无障碍出入口
不超过3层,每层建筑面积≯200m²。(GB50016-2014, 5.5.8)
应为封闭楼梯间。(GB50016, 5.5.13) 、楼梯净度≮1100。(GB50016, 5.5.18)、280(w)*160(h)。(GB50352-2005, 6.7.10)
每一层均需满足下列条件之一:
1 面积≯120m²时。最远点离楼梯间门≯22m,疏散门净宽≮0.9。
2 面积≯200m²时,按尽端房间和走道分别计疏散距离。
公共部位栏杆高≮1200。(JGJ62-2014, 4.1.13)
公共建筑内的厨房,墙体2小时耐火,乙级防火门,窗上有其它房间时,应设防火挑檐(JGJ64-2017, 4.3.11)也可以不写厨房。
卫生间不能设在餐厅上方。(JGJ62-2014, 4.1.9)下层也可以不写餐厅。
总图上室外停车时,注意停车场离建筑不小于6米或按GB50067-2014, 4.2.3减距离。
其非住宅用地上的低层<它:
当少于15套时,在X盘搜索“民宿”参考。
窗槛墙应满足800或1200。
无日照要求,按公共建筑计算节能。人员密集场所,外墙保温应为A级。应设消防救援口。
定性为商业
一、定性为商业
GB50016-2014 建筑设计防火规范(2018年版)
5.5.21.7 商店的疏散人数应按每层营业厅的建筑面积乘以表5.5.21-2规定的人员密度计算。对于建材商店、家具和灯饰展示建筑,其人员密度可按表5.5.21-2规定值的30%确定。(人/m²)
| 楼层 | 地下二层 | 地下一层 | 地上一、二层 | 地上三层 | 地上四及以上 |
|---|---|---|---|---|---|
| 密度 | 0.56 | 0.60 | 0.43-0.60 | 0.39-0.54 | 0.30-0.42 |
当省外为商业二、三层时:
根据5.5.8,设一部楼梯要求2、3层人数之和小于50人。
根据5.5.21.7及条文解释,2 层50人时,面积差不多83方(面积需包括卫生间和楼梯间),设1.4米的商业封闭楼梯间一部,卫生间一处,占了一大半。
结论:3层基本不现实,2层平面布置也不合理。(考虑采用两户再共用一个室外楼梯的形式?)
二、定性为商业网点(仅浙江省)
用地性质为商业,只有消防参照商业网点执行。其余应满足商业要求,比如按项目商业规模配无障碍卫生间、装卸车位等。
不超过2层,每层建筑面积≯200m²,总建筑面积不大于300 m²。(GB50016-2014, 5.4.11)
建筑总高度小于7.8m。
二层需满足面积≯200m²,最远点离室外出口≯22m。(GB50016-2014, 5.4.11)(楼梯间开敞时)
楼梯间封闭时,可按浙公通[2017]89号190条,二层算到封闭楼梯间的门。
楼梯净度≮1200。(浙公通2017, 190)260(w)*170(h)。(无出处,一般都可以)需按面积计算疏散宽度。
设无障碍出入口,外门净宽≮1200
走道净宽≮1200。
厨房最好不写。
总图上室外停车时,注意停车场离建筑不小于6米或按GB50067-2014, 4.2.2减距离。
步行街道不能小于6米宽。
步行商业街应有宽度不小于4m的消防通道。(JGJ48-2014, 3.3.3.2) (消防车道要求通过每一条商业街,对总图影响比较大)
其它:
窗槛墙应满足800或1200。
无日照要求,按公共建筑计算节能。
人员密集场所,外墙保温应为A级。设消防救援口。
三、浙江省能否做成三层商业
当浙江省做商业三层时:
根据5.5.8,设一部楼梯要求2、3层人数之和小于50人。
根据浙公通字[2017]89号第70条,二、三层采用防火分隔的库房,可以单独计算人数(不必按营业厅)。(利用第70条的实例暂无。)
📗 浙江省消防技术规范难点问题操作技术指南(2025年版)
4.1.26 同一防火分区总面积超过500m² 的地上和超过200m² 地下附属库房应设置一个独立的安全出口,在商场内第二安全出口可利用商业营业厅疏散;同一防火分区总面积不超过500m² 的地上和200m² 地下附属库房可不设置独立的安全出口,可利用商业营业厅疏散。上述商业营业厅所在防火分区和利用该商业营业厅疏散附属库房的建筑面积之和不应超过商业营业厅的防火分区最大允许建筑面积。
4.1.27 同一防火分区内采用防火措施分隔开的仓储、设备房、工具间、办公、非服务于营业厅的卫生间等可不计入营业厅面积,但应根据实际情况进行核定人数和宽度。
【说明】本条为《指南(2020版)》第4.1.26条修订。
TIP
浙江省内当建筑只有2层的时候,定性为商业网点更合适。(不计算人数,楼梯1.2米,踏步260x170。)
定性为办公
一、定性为办公(一幢建筑)
设无障碍出入口
公共建筑内的厨房,墙体2小时耐火,乙级防火门,窗上有其它房间时,应设防火挑檐(JGJ64-2017, 4.3.11)也可不写厨房。
不超过3层,每层建筑面积≯200m²。(GB50016-2014, 5.5.8)
开窗应满足敞开楼梯间条件。楼梯净度≮1100。(GB50016, 5.5.18)、260(w)*170(h)。(GB50352-2005, 6.7.10)
每一层均需满足下列条件之一:
1 面积≯120m²时。最远点离楼梯间门≯22m,疏散门净宽≮0.9。
2 面积≯200m²时,按尽端房间和走道分别计疏散距离。
(注:只有一部楼梯时,不适用大空间办公的30米。)
走道净宽≮1100,无障碍通道≮1200。
总图上室外停车时,注意停车场离建筑不小于6米或按GB50067-2014, 4.2.3减距离。
根据杭州市规划局2010年6月8日文件:办公每层建筑面积不宜少于800方,配置独立卫生设备的单元式小空间办公不超过项目总建筑面积的20%。(需另有规划认可)
厕位按人数计算配置,每层均应有无障碍厕位。
其它:
窗槛墙应满足800或1200。
无日照要求,按公共建筑计算节能。
应设消防救援口。
总图间距可依据5.2.4
二、办公和旅馆的比较
不要出现厨房;可定性为办公或酒店。
定义成酒店客房(一户作为一间)的优势在于可以用住宅户内楼梯,但户内楼梯越来越多不能通过。如果方案初期沟通不下来,要求酒店按公建做封闭楼梯间,可以和做成办公作一个比较:
| 适用 | 楼梯数 | 层数 | 每层面积 | 楼梯 | 楼梯宽度 | 踏步尺寸 | 无障碍 | 总图间距 |
|---|---|---|---|---|---|---|---|---|
| 办公 | 1 | 3 | 200 | 敞开楼梯间 | 1100 | 260*170 | 设无障碍卫生间,按面积计人数,设厕位 | 可4米成组布置 |
| 酒店 | 1 | 3 | 200 | 封闭楼梯间 | 1100 | 280*160(非强条) | 设无障碍客房 | 需6米 |
此时多层小面积显得不经济。适合采用单层小面积户型 + 大面积多层户型。
- 做办公需先规划认可,比如杭州对小空间办公有限制。
杭规函 [2018] 155号 关于拟出让商业商务用地规划条件增加类住宅限制要求的函 (2018.4.24)
“不得建设公寓式办公、酒店式办公等带居住功能用房,最小产权分割单元不小于300平方米”。
杭政办函[2012]2号 杭州市人民政府办公厅转发市建委市规划局关于进一步规范商业办公等非住宅类项目规划设计与管理实施意见的通知
三、商业办公等非住宅类项目应严格按照公共建筑的相关标准进行审批,并符合以下要求:
(一)商业办公等非住宅类项目应采取公共走廊式布局,公共卫生间应按层集中设置,不得采用单元式或住宅套型式设计,但允许平均每个标准层建设不超过3个带独立卫生间的分割单元(因特殊地形限制,标准层面积小于600平方米的,带独立卫生间的分割单元不超过1个); (二)内部平面应禁止采用住宅、公寓、别墅等居住建筑平面形式,建筑物立面应具备公共建筑的外立面形式与建筑特点,禁止设置外挑式阳台、飘窗; (三)具有公共的出入通道,除集中设置的食堂外,不得设置厨房和燃气管道。燃气供应单位不得违反规定擅自供气。 酒店类建筑不得分割转让(销售),不适用本条第一款第一项的规定。 五、在商业办公等非住宅类项目中,对公开出让经营性用地以及三类指标用地(留用地、拆复建用地、开发性安置用地)中允许按规定转让的部分,可根据土地出让合同的约定进行分割转让(销售)、办证,其他项目只能按幢整体转让(销售)、办证,不得分割转让(销售)、办证。
六、严禁任何单位和个人违反本意见的规定分割转让(销售)商业办公等非住宅类项目。对违反规定的,住保房管、国土资源等部门应按照有关法律法规的规定予以处罚。
八、……商业办公等非住宅类项目不得作为办理户籍、学生入学等手续的依据。
定性为老年人照料设施
一、适用规范:
JGJ450-2018老年人照料设施建筑设计标准》
GB50016-2014 建筑设计防火规范(2018年版)
楼梯:
一定要有2部楼梯。(详《建规》5.5.8)
楼梯需与敞开外廊连通或封闭。(5.5.13A)
梯段净宽不应小于1.20m,应为无障碍楼梯。
电梯:
二层一定要有电梯,且为担架电梯。
电梯应采取防烟措施。
电梯不应与居室相邻布置。
日照:每单元至少1个居住空间日照标准不应低于冬至日2h。(JGJ450-2018,5.2.1)
道路:救护车到达每户出入口。
场地:室外活动场地坡度不应大于2.5%。
保温材料:A级。
另外:走廊宽度、单元内的走廊宽度、门宽度、居室面积、无障碍要求、地面防滑性、允许噪声级、撞击声压值等都有更高要求。
JGJ450-2018
1.0.2 本标准适用于新建、改建和扩建的设计总床位数或老年人总数不少于20床(人)的老年人照料设施建筑设计。
2.0.1 老年人照料设施 care facilities for the aged 为老年人提供集中照料服务的设施,是老年人全日照料设施和老年人日间照料设施的统称,属于公共建筑。
2.0.9 生活单元 residential unit 主要为一定数量非护理型床位而设的生活空间组团,包含居室、卫生间、盥洗、洗浴、厨房等基本空间,一般成套布置,供老年人开展相对自主、独立的生活。
GB50016-2014 建筑设计防火规范(2018年版)
5.5.13A 老年人照料设施的疏散楼梯或疏散楼梯间宜与敞开式外廊直接连通,不能与敞开式外廊直接连通的室内疏散楼梯应采用封闭楼梯间。建筑高度大于24m的老年人照料设施,其室内疏散楼梯应采用防烟楼梯间。……
JGJ450-2018 老年人照料设施建筑设计标准
5.6.4 二层及以上楼层、地下室、半地下室设置老年人用房时应设电梯,电梯应为无障碍电梯,且至少1台能容纳担架。
6.5.3 老年人照料设施的老年人居室和老年人休息室不应与电梯井道、有噪声振动的设备机房等相邻布置。
JGJ450-2018 老年人照料设施建筑设计标准
5.6.6 老年人使用的楼梯严禁采用弧形楼梯和螺旋楼梯。
5.6.7 老年人使用的楼梯应符合下列规定:
1 梯段通行净宽不应小于1.20m,各级踏步应均匀一致,楼梯缓步平台内不应设置踏步。
GB50016-2014 建筑设计防火规范(2018年版)
5.5.14 ……老年人照料设施内的非消防电梯应采取防烟措施,当火灾情况下需用于辅助人员疏散时,该电梯及其设施应符合本规范有关消防电梯及其设置要求。
6.7.4A 除本规范第6.7.3条规定的情况外,下列老年人照料设施的内、外墙体和屋面保温材料应采用燃烧性能为A级的保温材料:
1 独立建造的老年人照料设施;
2 与其他建筑组合建造且老年人照料设施部分的总建筑面积大于500m²的老年人照料设施。
JGJ450-2018老年人照料设施建筑设计标准
4.2.4 道路系统应保证救护车辆能停靠在建筑的主要出入口处,且应与建筑的紧急送医通道相连。
拼接后的情况(非住宅用地)
GB50016-2014 建筑设计防火规范(2018年版)
2.1.21 防火分区 fire compartment 在建筑内部采用防火墙、楼板及其他防火分隔设施分隔而成,能在一定时间内防止火灾向同一建筑的其余部分蔓延的局部空间。
5.5.8 公共建筑内每个防火分区或一个防火分区的每个楼层,其安全出口的数量应经计算确定,且不应少于2个。符合下列条件之一的公共建筑,可设置1个安全出口或1部疏散楼梯梯:
从条文来看,5.5.8条并未强调是一幢建筑的每一层不大于200方。不论是否共墙、是否定义为一幢套用5.2.2条的距离不限,需注意每一户均为独立防火分区。
间距不小于2米,可以用乙级防火窗(不能影响通风和楼梯间的开窗面积)。(GB50014-2014,6.1.3)
拼接后碰到地方(金华)有户与户之间不得共墙的要求。

非住宅用地对比
办公
标准比较统一,一般满足如下要求:
楼梯按办公要求,疏散距离按22米控制。若二层疏散距离超22米,设敞开楼梯间。楼梯间窗周边1米内无其它门窗洞口(不足1米时做乙级固定窗)。
不设厨房。做无障碍入口,底层设无障碍卫生间,通向无障碍卫生间的通道净宽应不小于1.2米,门内外最好有1.5米的回转半径。
分歧点:是否需要设双墙。
旅馆
标准差异性大,每个项目的解决方案各不相同,分歧点列举:
是否要设双墙?
楼梯间是否要封闭?
楼梯按旅馆还是户内还是其它?
楼梯宽度要求1.1米还是1米?
楼梯平台是否需1.2米
……
商业网点
标准比较统一,但仅浙江省适用(纯商业用地可能不让做,需早期沟通。)
只能为一层或二层,两层总高度小于7.8米。楼梯净宽不小于1.2米,踏步满足260x170。疏散距离若超22米,设封闭楼梯间并且在底层直通室外。
2层不能大于200方。
TIP
排除规划对建筑性质的要求和小空间办公的限制,从图审尺度来看,在无法明确不确定因素的情况下,做成办公是比较稳妥的方法。
实例
一、旅馆
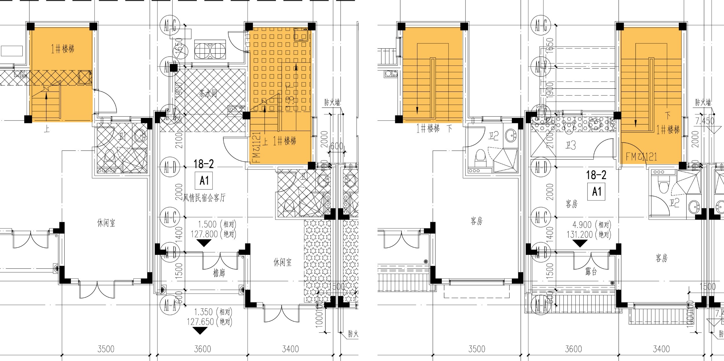
1、湖州莫干山郡安里二期(旅馆套房)
基本情况:我们按一单元为一个套间处理,套间内楼梯按户内楼梯设计。因是坡地建筑,保险起见,一层和二层均可直接出室外。
图审认定为旅馆建筑,要求做1.1米封闭楼梯间、踏步满足280x160才可算疏散楼梯。
若认定为非疏散楼梯,图审要求也要达到1.1米的走道宽度,平台要求1.2米宽,踏步260x170。(否则楼梯不能出现在图上)
最终楼梯取消,业主自理。

2、金华兰溪某项目(公寓式旅馆)
地上2层,双墙为设计需要,并非图审要求。
二层最远点到底层室外均小于22米。
楼梯宽度不足1米,踏步为240x200。
总说明里要写“每栋旅馆是为单一家庭服务的公寓式旅馆”。
图审认为楼梯不满足JGJ62-2014,4.2.11.4的1米宽的要求,但因为此条非强条,经沟通后放行,未改。

3、金华武义飞神谷慢城B区(旅馆套房)
户与户之间设双墙。(满足5.2.2距离不限后,再满足5.5.8设一部疏散梯的要求。)
楼梯据说(我院单专业做到扩初)当地按住宅户内要求(实际图上楼梯和办公设计成了一样),设敞开楼梯间。当二层到底层室外超22米时,做封闭楼梯间。

二、办公
1、金华武义飞神谷慢城B区项目(办公)
户与户之间设双墙。(满足5.2.2距离不限后,再满足5.5.8设一部疏散梯的要求。)
楼梯按办公要求(1.1宽,踏步260x170),设敞开楼梯间。各层的疏散距离均算至楼梯口。(实际楼梯到底层都就近设室外出口,绝大部分二层最远点到一层室外都不超22米。)

2、湖州德清县莫干山镇高峰村(办公)
地上2层,共墙。
- 楼梯按办公要求,二层疏散距离超22米,设敞开楼梯间。楼梯间窗周边1米内无其它门窗洞口(不足1米时做乙级固定窗)。

三、商业
1、桐庐莱茵体育生活之城(商业)
三层,两户连通。
按《商店建筑设计规范》设计。
楼梯净宽1.4米,设无障碍电梯。
底层设无障碍卫生间。
(没有做无障碍楼梯及每层无障碍卫生间。)


2、桐庐莱茵(商业网点,距离超22米)
商业网点仅限浙江省。(楼梯宽度1.2米,踏步为260x170。)
控制总高。
二层最远点到底层室外>22米。做封闭楼梯间,底层直通室外。(浙公通[2017]89号190条)
本文最后更新:2023-09-06